PIN RESIDENCE
Disponibilități
Portofoliu
Recenzii
Despre Noi
Contact
TELEFON 0728 943 094
Duplex
5 camere, 117.2mp utili
Apartamente disponibile în duplex: 1
pin residence
Duplex despărțit prin cămară
Specificații
Camere:
5
Suprafață utilă:
117.20mp
Suprafață totală teren:
250mp
Suprafață curte:
164.50mp
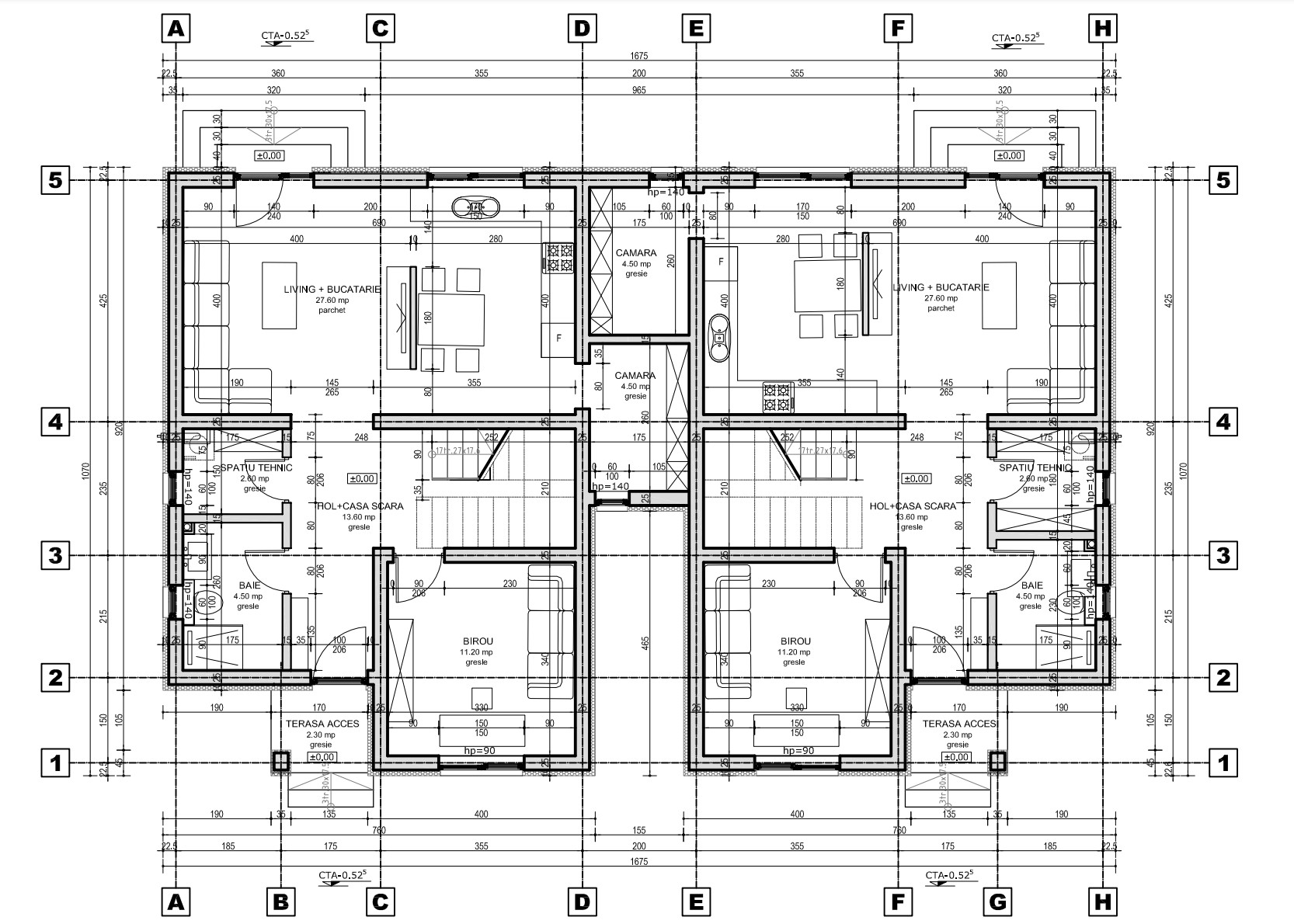
Hol + Casă Scară:
13.60mp
Birou/Dormitor parter:
11.20mp
Sp. Tehnic:
2.60mp
Baie Parter:
4.50mp
Living + Bucătărie:
27.60mp
Terasa:
15mp
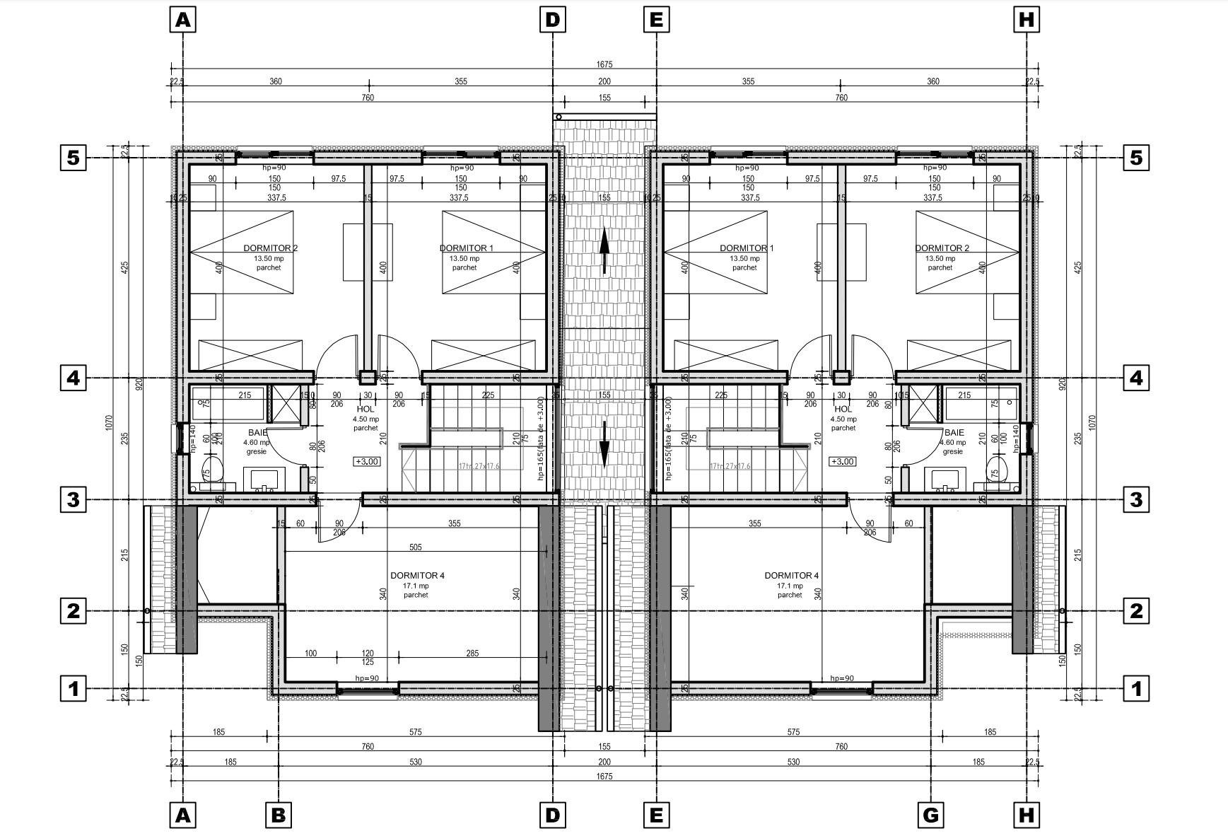
Hol etaj:
4.50mp
Baie etaj:
4.60mp
Dormitor 1 etaj:
13.50mp
Dormitor 2 etaj:
13.50mp
Dormitor 3 etaj:
17.10mp
Dotări
Beton armat
Ziduri cărămidă
Centrală gaz Ariston
Termostat ambient
Zugrăveli cu vopsea lavabilă
Acoperiș țiglă
Izolație din polistiren(15cm)
Parchet la alegere
Gresie, faianță la alegere
Uși interioare la alegere
Încălzire în pardoseală
Tâmplarie Salamander TriPan
Instalatie Interfon, Camere video si aspersoare
Garanție de bună execuție
×
Plan Parter Duplex
Plan Etaj Duplex
Amplasare duplex pe parcela
Facilități la doar un pas distanță - O viață mai ușoară, totul este mai aproape de tine!
Market, farmacie și parcuri pline de verdeață, toate în apropierea frumoasei Păduri Verzi – totul la doar câțiva pași de casă!
Finisaje Premium
Cabinet veterinar
Centura nord
Finisaje personalizate
Transport în comun
Pădurea Verde, teren de sport și parcuri
Market
Farmacie
Programează o vizită!
TELEFON 0728 943 094
Vrei sa fi la curent cu proiectele noastre? Urmărește-ne pe:
Instagram
Facebook
Google
Youtube